Wilhelminalaan

Aan de Wilhelminalaan, op de locatie van de voormalige Wilheminaschool, komen 26 nieuwe sociale huurappartementen. Het plan is een initiatief van ontwikkelaar Junco B.V. Triada nam het in juli 2024 van hen over. 

Levensloopgeschikt

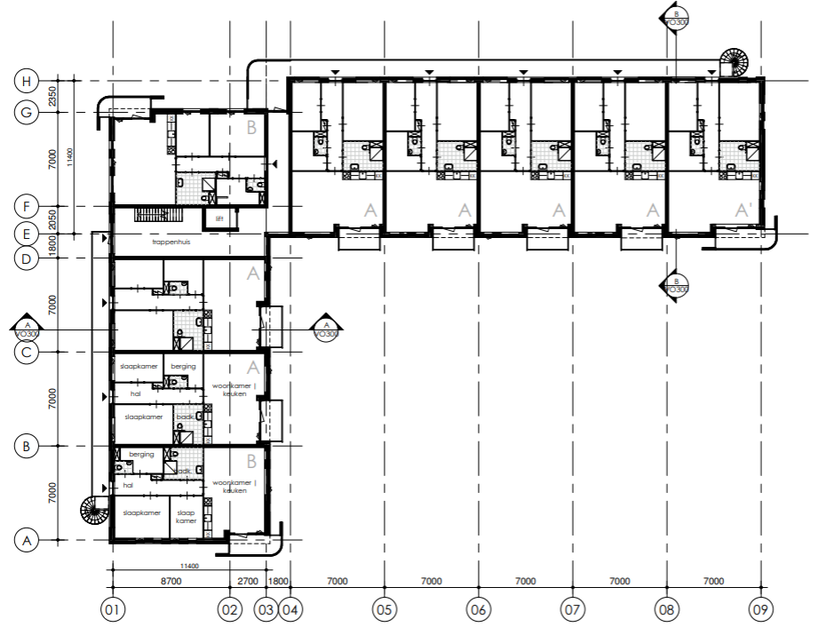
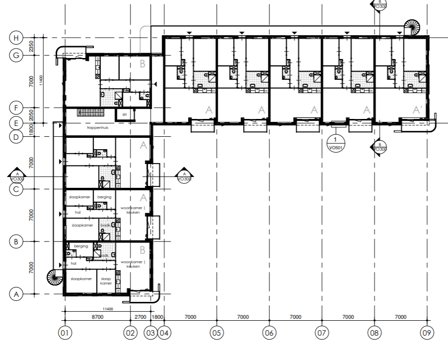
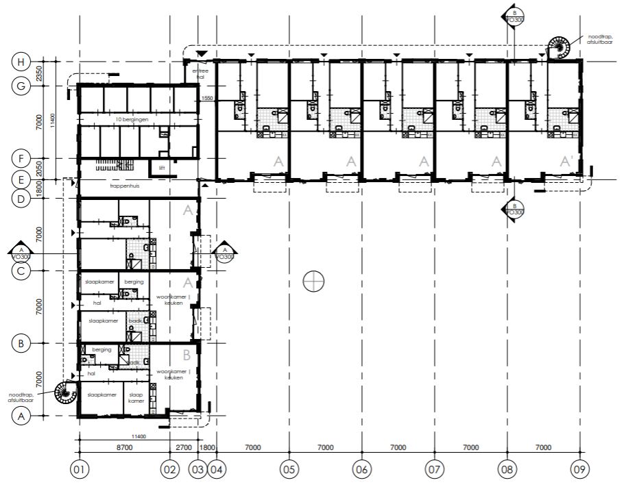
De 26 appartementen (type A en type B) hebben een oppervlakte van ca. 73m2 en twee slaapkamers. De woning is levensloopgeschikt; dat betekent dat de bewoner hier kan blijven wonen wanneer hij of zij slechter ter been wordt en gebruik moet maken van bijvoorbeeld een rollator of scootmobiel. De woning is gelijkvloers en drempelvrij. Er is een toilet in de badkamer en een apart toilet voor bezoekers. Alle appartementen hebben een balkon of terras.

De woningen zijn heel geschikt voor oudere huurders. De huurprijs biedt mogelijkheid tot huurtoeslag. 

Passend in de omgeving

Het gebouw heeft drie woonlagen met appartementen. Centraal in het pand bevinden zich de entree, het trappenhuis, de lift en een deel van de bergingen. De vorm van het gebouw is gelijk aan dat van de voormalige basisschool op deze plek. Het nieuwe gebouw sluit daarmee goed aan op de omliggende bebouwing.
Door het groen rondom heeft het geheel een vriendelijke uitstraling. Het voormalige schoolplein aan de voorzijde wordt een tuin met wandelpaden. De entree tot het gebouw is zowel aan de voor- als achterzijde. Parkeren gebeurt achter het pand op het eigen terrein. Daar bevinden zich ook de overige bergingen.
De locatie heeft een ideale ligging; dicht bij het centrum van Heerde met veel voorzieningen op loopafstand.

Voortgang

Na het positieve besluit op het gewijzigde bestemmingsplan en de verlening van de omgevingsvergunning startte de sloop van het oude schoolgebouw in mei 2025. Inmiddels is de bouw goed op gang en liggen de eerste verdiepingsvloeren al. Naar verwachting kunnen we de sleutels van de nieuwe appartementen in september 2026 uitreiken.