Assenrade: 10 woningen Stockholm en Tartu

Twee rijen van vijf 

In juni 2020 startte de bouw van de laatste huurwoningen van Triada in de wijk Assenrade in Hattem. In maart 2021 konden we daarmee nog eens tien gezinnen een thuis bieden in deze jonge en groenrijke buurt. 

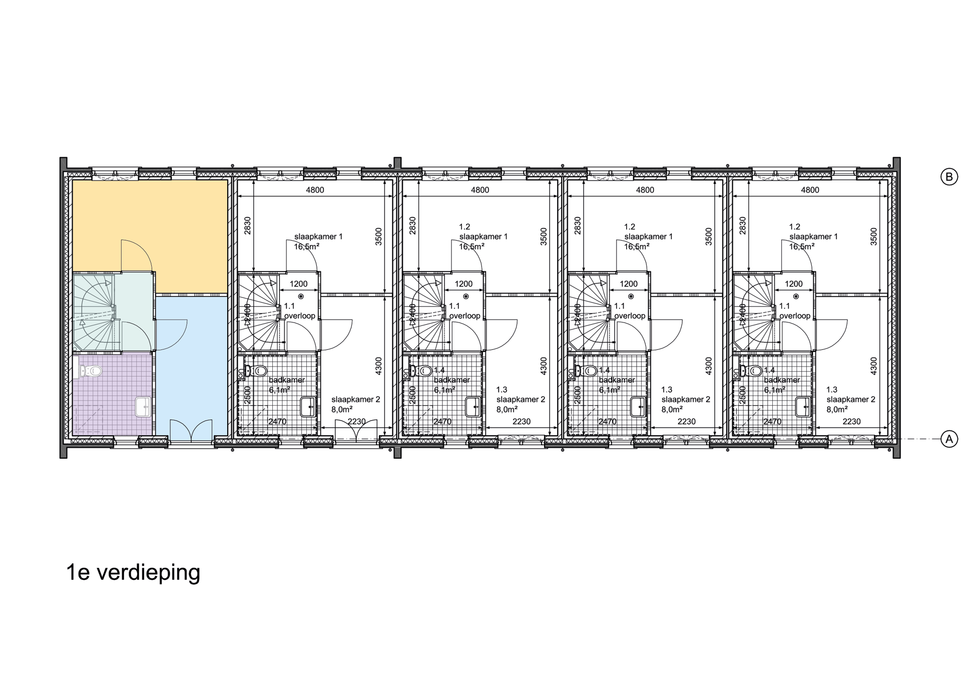
De eengezinswoningen staan in twee rijen van vijf. Een rij aan de straat Stockholm en een rij aan de straat Tartu.
De uitstraling van de woningen is gelijk aan die van de andere huurwoningen in de wijk. Met oog voor detail en gebruik van mooie materialen. Nieuw is de toepassing van een warmtepomp en pv-panelen. 

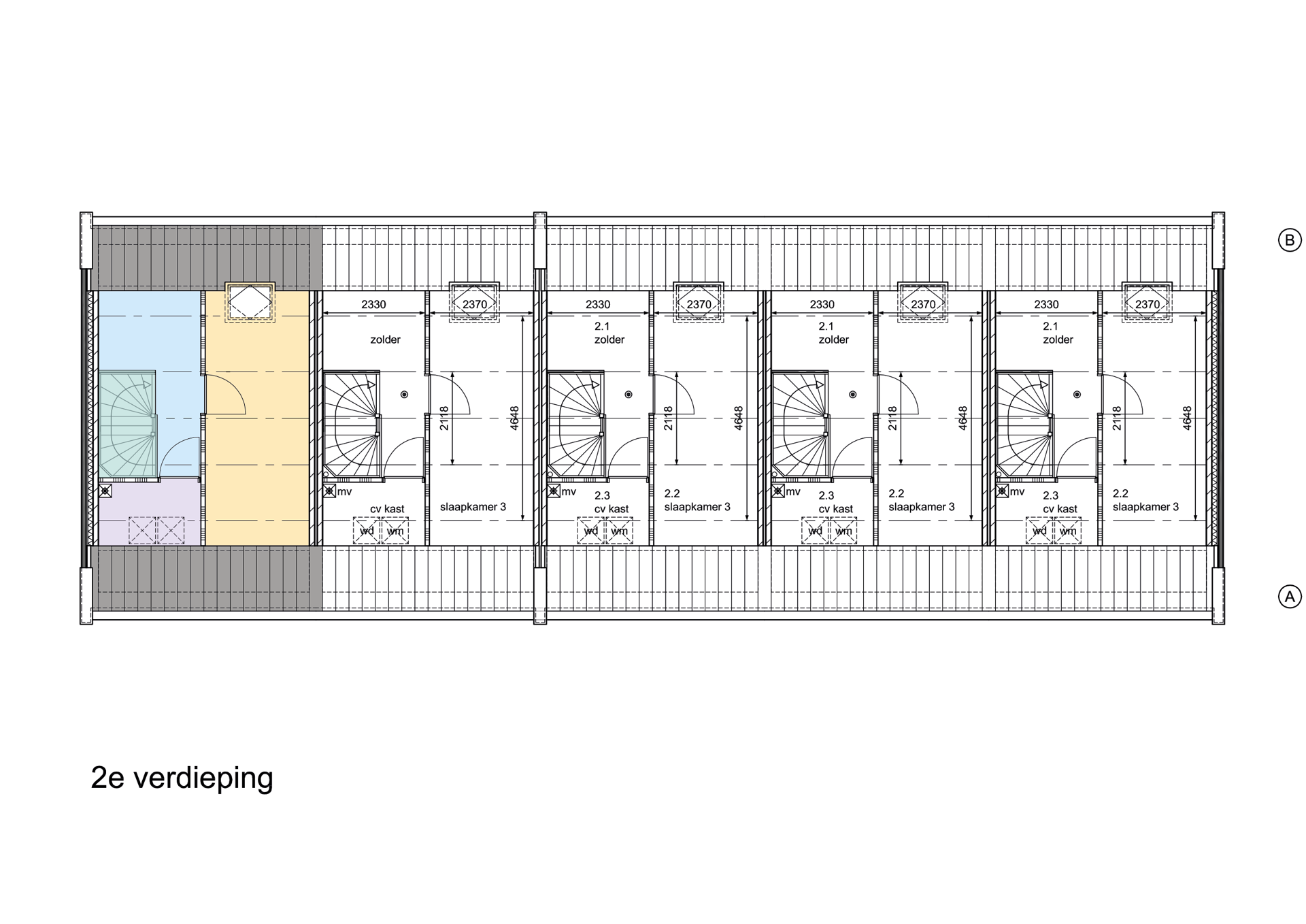
De woningen zijn vanzelfsprekend aardgasloos. Ze zijn voorzien van een warmtepomp voor verwarming, warm water en voor ongeveer vier graden 'topkoeling'. Deze eengezinswoningen zijn iets kleiner dat de eerdere huurwoningen van Triada in de wijk. Ze hebben op de verdieping twee slaapkamers. Ook is er een vaste trap naar een ruime zolder. Tussen de twee blokken van vijf woningen liggen de parkeerplaatsen ingeklemd, uit het zicht.

Aannemer Schutte Bouw & Ontwikkeling uit Zwolle startte in juni 2020 met de bouwwerkzaamheden. Oplevering volgde in het voorjaar van 2021.

Assenrade

Assenrade is de jongste wijk van Hattem. Het ligt aan de noordkant van de stad, tegen het buitengebied en niet ver van de IJssel. De wijk is ruim opgezet en heeft een mooie architectuur die teruggrijpt op het historische stadshart van Hattem. De straatnamen verwijzen naar Hanzesteden.

In 2012 is met de bouw van de wijk gestart. De wijk kent verschillende soorten woningen: vrijstaand, twee-onder-één-kappers, rijtjeswoningen, etc. In totaal komen er 275 woningen waarvan 87 huurwoningen van Triada. In de eerdere fases zijn al 77 huurwoningen opgeleverd. Kijk hiervoor bij onze opgeleverde projecten.